Donnerstag, 20. Dezember 2012

Ausführungspläne

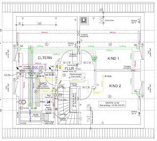
Heute kamen die finalen Ausführungspläne, da es hier und da noch ein wenig zu ändern gab (Heizungen mussten verschoben und unsere Ablagen im Bad detailliert werden).

Auch wenn die Baugenehmigung noch etwas dauern wird, freuen wir uns schon sehr auf die nächsten Wochen, wenn es endlich los geht.

So wird es dann mal werden:











1 Kommentar:

  1. Moin, uns gefällt die Küchenlösung! Überlegen, die Kochinsel bis zur Außenwand durchzuziehen und zwischen den langen Elementen (Kochinsel und Bereich mit der Spüle) eine Türe anstatt des Fensters einzusetzen.

    AntwortenLöschen